日立:大神级改造!上海80年代的50㎡老房是如何满足5口之家的?
家,不是四堵墙围成的房子,而是充满爱与希望的空间。
日头初上,阳光照耀在上海这座繁华的城市。在这个城市的街道上,朝气蓬勃的上班族奔波在工作路上,闲适的老年人懒洋洋的躺在藤椅上晒着太阳。各式建筑缄默地伫立街头,好似一张张翻开的书页,在叙述着这座城市动人的传奇,安静与繁华并存的城市,吸引着无数带着想象与好奇的人。
Lily是土生土长的上海人,有一对可爱的龙凤胎,家庭温馨幸福。但是,最近孩子上学的问题一直困扰着她。原来学校离家很远,路上拥堵,孩子们经常不能按时到校,影响学习成绩。

多年前,Lily在静安区购买了一套学区房,虽然房子不大,但附近有着静安最好的小学,步行5分钟就能到学校,不必担心路程拥堵。为了让孩子拥有更好的教育环境,Lily决定将这个房子装修好,作为孩子上学期间一家人的居所。

(装修前房间环境)
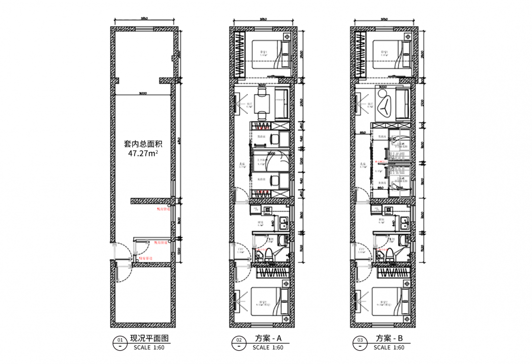
购房后,Lily许久未踏入这个房子,再次进入,她还是被震惊了,老、破、小,房子面积大约50平方,整体环境相当破败。虽然居住条件有限,但Lily想要的生活质量决不打折。这个房子需要满足一家五口的日常生活,要有四个卧室,还要配齐客厅、厨房等功能区域。这对设计师来说是个不小的考验。

(房屋改造设计方案)
来自台湾的设计师侯博训实地考察发现,这套房子是狭长户型,一进门就是厨房和卫生间,一道长长的走廊连通南北两个卧室,想要将这种“奇葩”户型的每个空间合理利用,整个房间的布局与功能区分是重中之重。
设计师侯博训表示:“这套房子面积比较小,按照业主要求隔成四个房间,所以我把原来的客厅一分为二;一半变成儿童房,设计上运用叠加的手法,利用隔板与上下床将这个小空间又一分为二,这样两个孩子都有属于自己的空间。另外,我用蓝色、粉色两种颜色的家具进行装饰,既美观又有区分。房门则采用推拉移门的设计,在使用上既灵活又有变化,白天打开门保证室内采光,关闭后又能保证孩子空间的私密性。

另一半的空间,我的设想是把它打造成一个精致又温馨的休憩区域。所以我摆放了小巧的沙发,选择可折叠桌椅,不用的时候收纳起来完全不占空间。沙发对面的墙上安装了投影,打造家庭影院的感觉,这样的客厅完全可以满足业主一家吃饭、休息、娱乐。”

“原本的卫生间非常小,大概只有两平方米左右,在这么小的空间要放洗卫三件套会非常局促,所以我选择将洗漱台的位置放在屋子的进门处,卫生间内只安装淋浴器与马桶,这样既满足了一家人的洗漱需求,又把进门的空间利用起来,正好迎合了如今卫生间三分离的趋势。”

“北面房间靠近街道,噪音比较大,所以在设计时把窗户换成了隔音窗,尽可能降低环境噪音。这个房间是业主夫妻俩居住场所,考虑到女业主的衣物比较多,所以我在房间内设计了两个衣柜。这个房间最特别的地方在于它连通着二楼露台,虽然可能会给生活带来一些不便,但我的想法是可以把这一点合理利用起来,所以,我选择用玻璃窗把楼层进行连接,这样可以让房间光线更加充足,安装窗帘以后,也可以保护业主的隐私安全。”

房间布局安排妥当,设计师又面临另一个棘手的问题。这套老房子位于一层,层高只有两米六,北面房间连通二楼露台,导致整个房间的层高又减少了近30公分。这让家电选择异常困难,特别是空调的选择。
起初,Lily想选择空调挂机和柜机,但分体空调管路裸露,还浪费房间面积。追求精致生活的Lily有些难以接受。机缘巧合下,Lily在听广播时认识了日立中央空调,便动了安装中央空调的心思。
日立中央空调机身厚度仅为19.2cm,体型小巧,完美隐藏在吊顶之中,不会影响空间面积;而且标配了冷凝水泵,进一步降低吊顶高度,保证排水通畅。最让Lily心动的是日立中央空调的超低温除湿功能,彻底解决梅雨季室内潮湿问题。
“在整个设计过程中,我参考了香港、台湾等地同等户型的设计方案,力图最大化的利用好房子的每个空间,为业主提供一个精致温馨的家。”与设计师侯博训一样,日立中央空调也致力于以科技创新为基石,为用户创造美好生活。
在寸土寸金的上海,与Lily家相似的小房子数不胜数。无数年轻人在城市漂泊、奋斗,只为拥有一个美好舒适的家。家是温馨的港湾,家是幸福的乐园,家也需要无数优秀设计师和优质产品共同筑建。
日立中央空调
匠心筑就,品质加持
创造幸福温馨家居生活

